Portable Accommodation
Offices
Modular Home Series: Workforce Housing
Square Feet: 480 (240sqft per unit")
Dimensions: 16’ x 30’
Bedrooms: 2 (1 per unit)
Bathrooms: 2 (1 per unit)
Modular Home Series: Workforce Housing
Square Feet: 1495
Dimensions: 19’8” x 76’
Bedrooms: 4
Bathrooms: 2
Modular Home Series: Workforce Housing
Square Feet: 1495
Dimensions: 19’8” x 76’
Bedrooms: 4
Bathrooms: 4 (1 ensuite per unit)
Modular Home Series: Workforce Housing
Square Feet: 1495
Dimensions: 19’8” x 76’
Bedrooms: 6
Bathrooms: 2
Modular Home Series: Meridian Office
Square Feet: 800
Dimensions: 16’ x 50’
Offices: 3
Bathrooms: 1
Modular Home Series: Meridian Office
Square Feet: 1120
Dimensions: 19’8” x 56’
Offices: 4
Bathrooms: 1
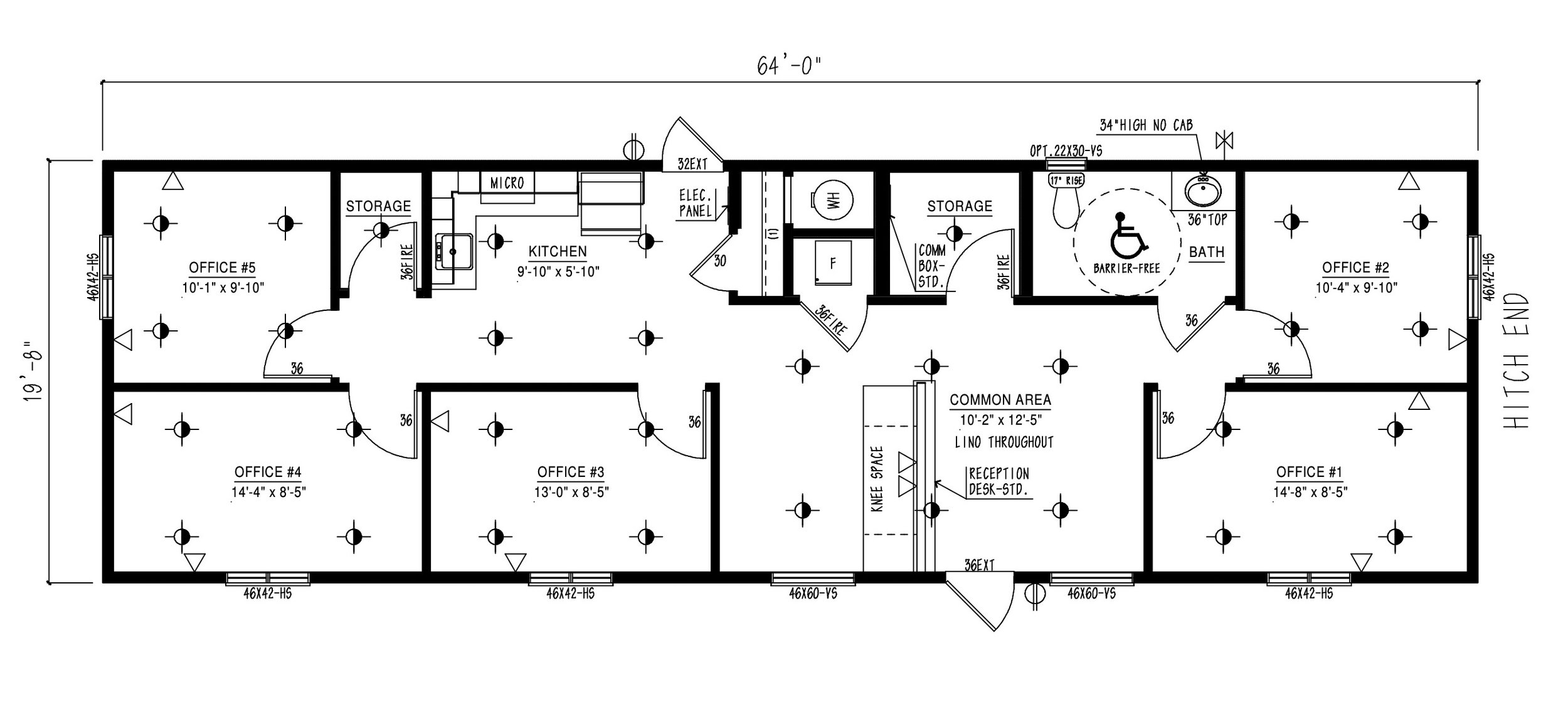
Modular Home Series: Workforce Office
Square Feet: 1259
Dimensions: 19’8” x 64’
Offices: 5
Bathrooms: 1